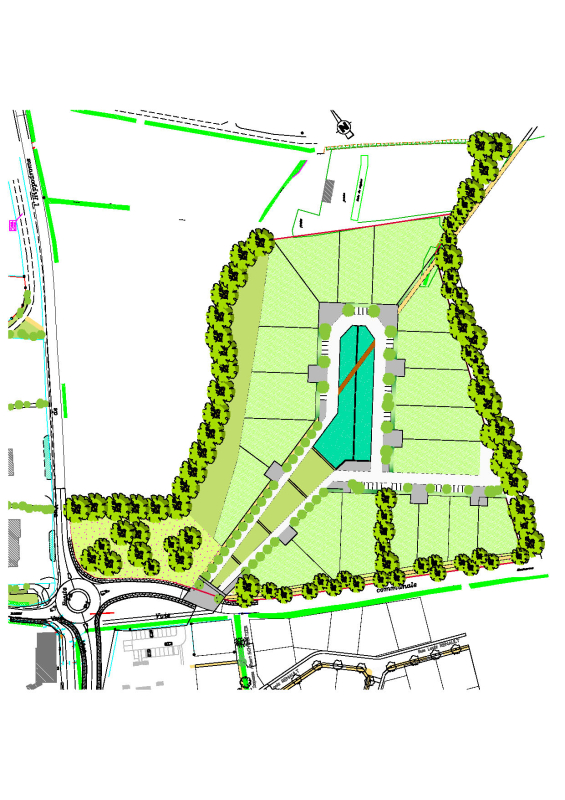
Village d'entreprises Kergrippe III à SENE

Maître d'ouvrage :

- EADM

- AMO pour la Ville de SENE

Missions :

- Conception

- Maîtrise d'oeuvre infrastructure

- Cahier de recommandations architecturales et paysagères

Partenaires :

- Horizons paysage et aménagements

- Minier architecte

Montant des travaux :

- 1 352 500 € HT

Emprise :

- 2 ha

2011/2014